058-233-
6262
(
むつうむつう
)
【代表】
0120-005-313
【予約】
診療案内
施設紹介
アクセス
スタッフ紹介
2F II ADVANCEルーム
(第二手術室)
:施設・設備紹介
II ADVANCEルーム
(第二手術室)
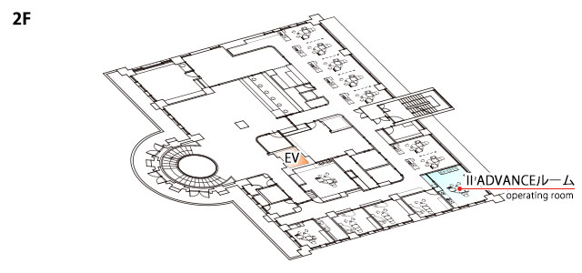
2階見取り図
II ADVANCEルーム(第二手術室)
360°VIEW
施設・設備紹介 カテゴリ メニュー
1F
2F
受付
ラウンジ
ホール
オープン治療室1
いちご・フリージア・さくら・シクラメン・コスモス
オープン治療室2
ローズ・なでしこ
子供治療室
ディズニー
ダイヤモンド
(個別治療室)
オパール
(個別治療室)
スタールビー
(個別治療室)
I ADVANCEルーム
(高度先進医療:第一手術室)
II ADVANCEルーム
(第二手術室)
レントゲン室
キッズルーム
回復室
ブラッシングコーナー
3F
4F
メインメニュー
診療案内
コメット歯科の診療科目・治療項目をご紹介します。
院内感染防止
コメット歯科の院内感染防止策、3密対策をご紹介します。
施設紹介
コメット歯科クリニックビルの施設をご紹介します。
1階
コメットガーデン
がますます充実!
アクセス
コメット歯科へご来院いただく交通手段をご紹介します。
スタッフ紹介
私たちが「おもてなしの心」を持って対応させていただきます。
≡ カテゴリ メニュー
ページのTOPへ ▲